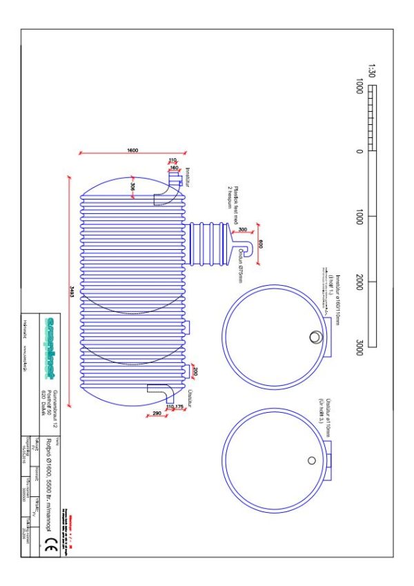
Rotþró 5500 L m. mannopi
Description
Vörulýsing
Rotþrærnar frá Sæplasti eru einfaldur búnaður til forhreinsunar á skólpi. Þær eru tilvaldar til notkunar þar sem staðhættir leyfa ekki almenna skólpveitu til sjávar. Rotþrónum er ætlað að beisla, upp að vissu marki, þau mengunarefni sem eru í fráveituvatni. Óuppleyst efni skiljast frá vatninu, þau þyngri falla til botns en fita, sápur og önnur léttari efni fljóta upp að vatnsyfirborði. Lífræn efni, sem eftir verða í rotþrónni, fara að rotna fyrir tilstilli gerla og rúmtak fastra efna minnkar. Hreinsa þarf botnfall úr rotþróm reglulega.
Þriggja hólfa rotþrær
Sæplast rotþrærnar eru þriggja hólfa og steyptar úr polyethelyneefni (PE). Þær eru léttar, meðfærilegar og auðvelt að setja þær niður. Inntak og úttak rotþrónna er 110 mm og 160 mm. Öll tenging lagna er auðveld og örugg. Útloftunar- og tæmingarrör skal setja á öll hólf rotþróarinnar og skal að minnsta kosti eitt þeirra vera opið. Sæplast framleiðir einnig stærri rotþrær með manngengum opum sem auðvelda eftirlit og tæmingu. Ganga skal frá lokum á öllum opum þannig að börn geti ekki opnað þau. Þegar rotþrær eru lestaðar eða affermdar af flutningatæki skal nota lyftaragafla eða hífa þær í stroffum. Gæta skal þess að þrærnar séu festar við flutningatæki með tryggilegum hætti og að þær fái ekki á sig þung högg við meðhöndlun.
Stærðir og niðursetning
Hér á vefsíðunni eru staðlaðar stærðir rotþróa sem Sæplast framleiðir en aðrar stærðir er hægt að fá sérsmíðaðar eftir þörfum.
Rotþrærnar frá Sæplasti eru hannaðar samkvæmt leiðbeiningum frá Umhverfisstofnun en á vefsíðu stofnunarinnar má finna leiðbeiningarbækling. Leiðbeiningar Sæplast um niðursetningu og frágang rotþróa er að finna í bækling hér neðar á síðunni. Staðlaðar gerðir rotþróa eru CE-merktar og standast kröfur staðalsinns IST EN 12566-1:2000/A1:2003. Athygli er vakin á ábyrgð kaupanda að fara eftir leiðbeinungum um niðursetningu og viðhald. Mikilvægt er að kaupendur rotþróa leiti til fagmanna og vandi til niðursetningar á þróunum sjálfum, sem og siturlögnum til að tryggja rétta virkni þrónna.
Additional information
| Weight | 67419994987 kg |
|---|---|
| Dimensions | 6741978579 × 674199179898 × 6741993989 cm |
Product Description
Vörulýsing
Rotþrærnar frá Sæplasti eru einfaldur búnaður til forhreinsunar á skólpi. Þær eru tilvaldar til notkunar þar sem staðhættir leyfa ekki almenna skólpveitu til sjávar. Rotþrónum er ætlað að beisla, upp að vissu marki, þau mengunarefni sem eru í fráveituvatni. Óuppleyst efni skiljast frá vatninu, þau þyngri falla til botns en fita, sápur og önnur léttari efni fljóta upp að vatnsyfirborði. Lífræn efni, sem eftir verða í rotþrónni, fara að rotna fyrir tilstilli gerla og rúmtak fastra efna minnkar. Hreinsa þarf botnfall úr rotþróm reglulega.
Þriggja hólfa rotþrær
Sæplast rotþrærnar eru þriggja hólfa og steyptar úr polyethelyneefni (PE). Þær eru léttar, meðfærilegar og auðvelt að setja þær niður. Inntak og úttak rotþrónna er 110 mm og 160 mm. Öll tenging lagna er auðveld og örugg. Útloftunar- og tæmingarrör skal setja á öll hólf rotþróarinnar og skal að minnsta kosti eitt þeirra vera opið. Sæplast framleiðir einnig stærri rotþrær með manngengum opum sem auðvelda eftirlit og tæmingu. Ganga skal frá lokum á öllum opum þannig að börn geti ekki opnað þau. Þegar rotþrær eru lestaðar eða affermdar af flutningatæki skal nota lyftaragafla eða hífa þær í stroffum. Gæta skal þess að þrærnar séu festar við flutningatæki með tryggilegum hætti og að þær fái ekki á sig þung högg við meðhöndlun.
Stærðir og niðursetning
Hér á vefsíðunni eru staðlaðar stærðir rotþróa sem Sæplast framleiðir en aðrar stærðir er hægt að fá sérsmíðaðar eftir þörfum.
Rotþrærnar frá Sæplasti eru hannaðar samkvæmt leiðbeiningum frá Umhverfisstofnun en á vefsíðu stofnunarinnar má finna leiðbeiningarbækling. Leiðbeiningar Sæplast um niðursetningu og frágang rotþróa er að finna í bækling hér neðar á síðunni. Staðlaðar gerðir rotþróa eru CE-merktar og standast kröfur staðalsinns IST EN 12566-1:2000/A1:2003. Athygli er vakin á ábyrgð kaupanda að fara eftir leiðbeinungum um niðursetningu og viðhald. Mikilvægt er að kaupendur rotþróa leiti til fagmanna og vandi til niðursetningar á þróunum sjálfum, sem og siturlögnum til að tryggja rétta virkni þrónna.






Reviews
There are no reviews yet.